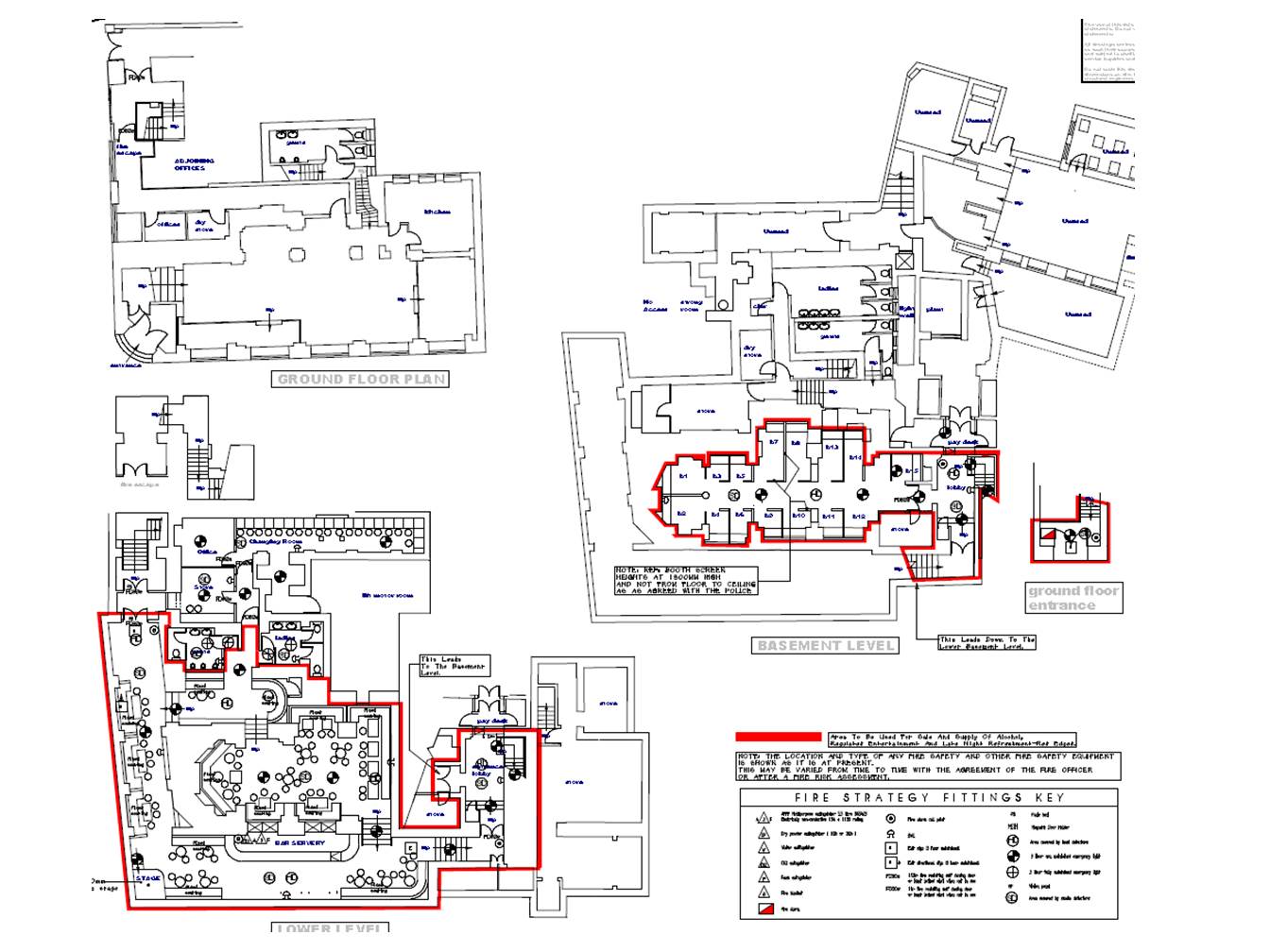
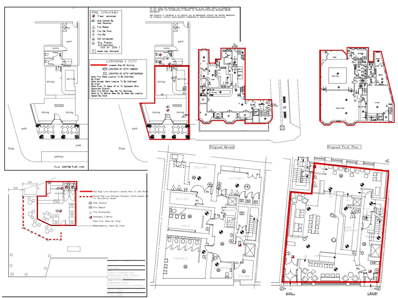
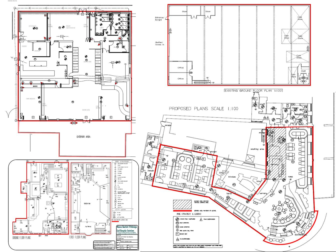
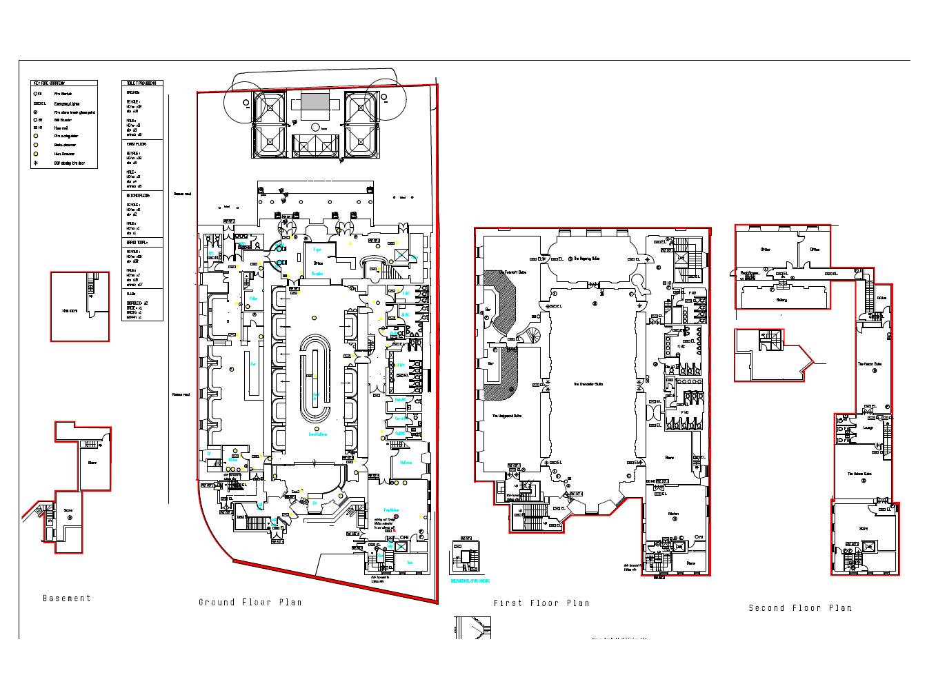
Next Previous Licensing Plans: Full survey of existing and proposed plans ready for Licensing submission: minor variation/ full variation etc. Examples of works as shown. by Bartlett Interior Design September 23, 2015 Leave a comment Uncategorized Share this: Share on X (Opens in new window) X Share on Facebook (Opens in new window) Facebook Like Loading... Related